house of blocks
Year: 2019
Type: single family house
Location: Nantucket, MA
Type: single family house
Location: Nantucket, MA

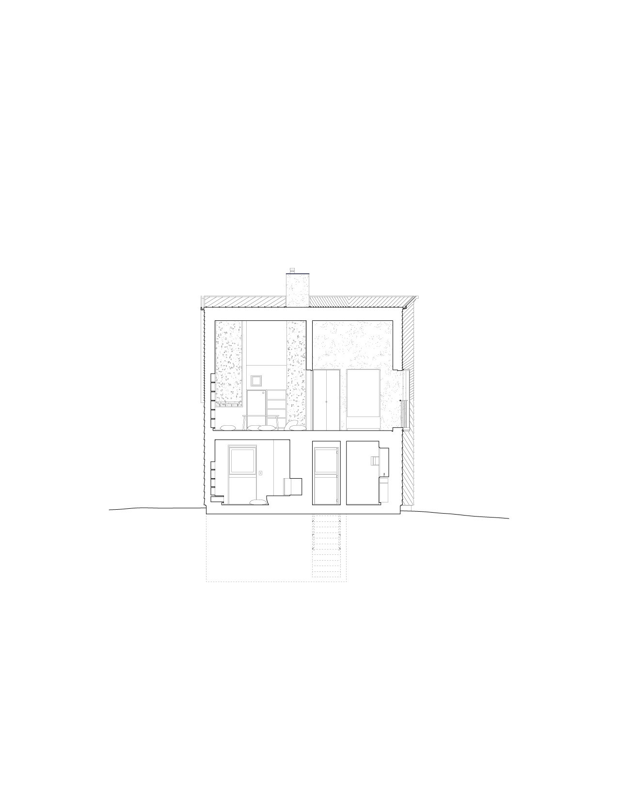
The house is divided into a pair of two. On one side, there is a house with a kitchen, a dining room, a bathroom, and a laundry room on the ground floor; a bedroom and a terrace on the upper floor. On the other side, there is a house with a family room, a mini bar, and a powder room on the ground floor; a study room and a balcony on the upper floor. Both houses feature similar pitched roofs and angled gable walls — one appears more symmetrical, and the other is not. The terrace and balcony on the upper level face each other, while the entries do not.
Like Fröbel’s building blocks, the massing is derived from a game of stacking blocks of different shapes, more precisely: cube, rectangular and triangular prism, pyramid, and tetrahedron. Each type of block has variations in sizes and proportions, with all edges following the ratio of 1, φ, 1+ φ (when 1/ φ = φ/1+ φ). A set of 91 unique basic blocks can be obtained by dissecting a cube where all edges equal 1+φ+(1+φ).
The game requires players to create house-like shapes by stacking a ‘gable roof’ on top of ‘walls’, where the height of the ‘wall’ and the height of the ‘gable roof’ should both be measured to equal 1+φ. The house should be built carefully, with tight edges and smooth faces — an ‘overhang’ or a ‘flat roof’ is not allowed.
The game requires players to create house-like shapes by stacking a ‘gable roof’ on top of ‘walls’, where the height of the ‘wall’ and the height of the ‘gable roof’ should both be measured to equal 1+φ. The house should be built carefully, with tight edges and smooth faces — an ‘overhang’ or a ‘flat roof’ is not allowed.